• Cottage House Plan - Redfern 62868 - Front Exterior Icon_ionic-ios-expand
  • Cottage House Plan - Redfern 62868 - 1st Floor Plan Icon_ionic-ios-expand
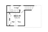
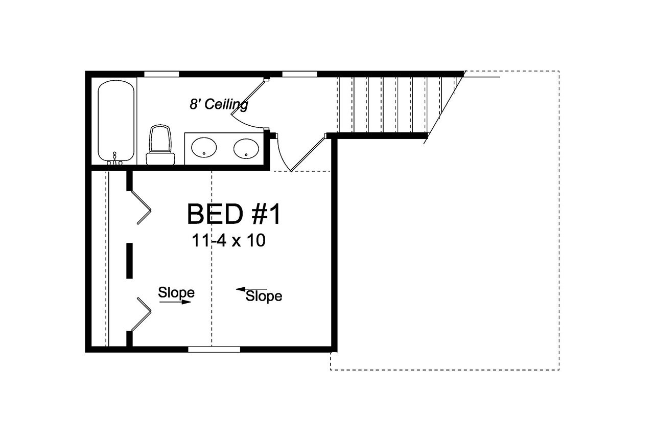
  • Secondary Image - Cottage House Plan - Redfern 62868 - 2nd Floor Plan Icon_ionic-ios-expand
  • Cottage House Plan - Redfern 62868 - Front Exterior
  • Cottage House Plan - Redfern 62868 - 1st Floor Plan
  • Secondary Image - Cottage House Plan - Redfern 62868 - 2nd Floor Plan
  • At a glance
  • Square Footage: Total Living 664 Square Feet
  • Bedrooms 1 Bedrooms
  • Baths Full 1 Full Baths
  • Floors 2 Floors

Floor plan

Cottage House Plan - Redfern 62868 - 1st Floor Plan Icon_ionic-ios-expand
Secondary Image - Cottage House Plan - Redfern 62868 - 2nd Floor Plan Icon_ionic-ios-expand

Contact HPC Experts

Have questions? Help from our plan experts
is just a click away.

To help us answer your questions promptly, please copy and paste the following information in the fields below.

Plan Number: 62868
Plan Name: Redfern
Your submission has been received!
item-icon

Free modification quote

Call Us 866-688-6970 or fill out our form.

Get Started
item-icon

Cost to build report

How Much Will This Plan Cost To Build?

Find Out
GetQuote

Free modification quote

Are you looking for additional plan options?

Get a Quote

Have questions? Prefer to order by phone? Give us a call: 1-866-688-6970

Adding to Cart The item has been added

Plan details

Basic Details

Building Details

Interior Details

Garage

What's Included in a Plan Set?

1. Front elevation and construction notes.
2. Rear and side elevations.
3. Floor plan, including electrical, window and door sizes, floor joist span directions and ceiling type notes (9’ ceiling, vault, etc.)
4. Second floor plan (if the plan is a two-story plan), with the same info as shown on the first floor plan.
5. Typical wall section.
6. Typical foundation details.
7. Roof plan showing roof pitches, ridges and valleys, noted as 2”x8” rafters or optional roof trusses.
8. Foundation plan. Standard is concrete block slab, with optional crawlspace or basement foundations available.
9. Full Building Section

One story house plans will contain 8 pages.
Two story house plans will contain 9 pages.

These house plans are the starting point for permit documents. The builder will need to include additional items or information as required locally such as; site plan, soil borings, energy calculations, etc. Some areas will require engineering, based on local conditions and codes due to expansive soil, hurricane zones, earthquake zones, snow loads, etc. The plans do not include engineering, if required, that will need to be done locally. The builder should have local contacts to provide these additional items required for permitting. If the home is to be built with trusses, they will need to be designed by the local truss company that will be building the trusses.

New to Plan Buying?

What You Need to Know About Purchasing Plans

 

You are about to embark on an exciting process, enjoy it!

 

Here is what you need to know about purchasing house plans from HPC:

 • Each designer and architect plans are created with their own unique style and content. Please be sure to read the "What's included in a Plan Set" tab, and if you don't see what you are looking for, be sure to give us a call.
 • The designs are not engineered. Check with the building department where the structure is being constructed to find out if an engineer's review is required. We can help facilitate engineering for your plan if you are unable to find a local professional who can assist you.
 • Your building department may also require a site plan of your lot be included with your submittal for a building permit. A local design

professional in your area should be able to help you with this as well as evaluating your chosen plan to make sure it meets the local building requirements for weather and seismic conditions.
 • Please read and understand your licensing agreement. This will clearly define what you can and can not do with your construction documents.
 • Electronic formats of packages sales (PDF & CAD Files) are final. Printed construction documents may be exchanged with an exchange fee within 30 days of purchase.
 • Unless purchasing an additional build license (one time additional or multi-build additional) you may build the structure one time. Ownership of the construction documents can not be transferred or sold.
 • Unless purchasing a printable package, you may not make additional copies of the plan without the permission of the designer.

Plan Packages Explained

 

Ready to purchase plans and unsure which construction package to choose? We hope the following can help you decide. Please note: Plan packages vary and may not be available on all plans.

 

1 Set Study Package


This is a single set of prints will allow you to completely review the plan, get accurate quotes for construction costs, and contemplate custom design changes you may wish to make. Study sets are marked Not For Construction and without the license necessary to legally build the home. Don't worry though, we allow a 100% upgrade credit towards a buildable licensed construction package within one year of your 1 Set Study Package purchase.

 

5 and 8 Set Print Packages


These are licensed print packages of the construction documents printed and shipped to you.

 

PDF Print Package


This PDF package is a non-modifiable, print only PDF file that saves time, gas, money, and paper! Many contractors and building jurisdictions are working with digital formats of the construction documents. The PDF print package allows for you or your contractor to distribute the construction documents to sub-contractors, use electronic submittals to apply for the building permit, and print the sets you need when you need them. 

 

Plans Now

Don't wait - get your plans NOW! This digital plan package is a downloadable Print PDF Package (non-modifiable, print only). Includes a single build license - electronically signed and emailed to you immediately after placing your order - with permissions to make copies of the plan locally as needed.

 

PDF Master


An unlocked modifiable PDF file. Same conveniences as the PDF print package with the added benefit which allows your local professional to make engineering mark-ups or design changes using compatible software. 

 

CAD Electronic Files


By using CAD compatible software that use .dwg or .dxf file formats enables you or a local professional to modify the construction documents and integrate those changes throughout the entire plan. Once the modifications or engineering is incorporated into your design, you can reproduce as many copies of the plan needed to build the structure.

 

 

Still unsure which package to choose? You may want to discuss this with your builder or give us a call.

How to Evaluate a Plan

 

When looking at plans, most often it's the exterior profile that will first grab your attention. You love the exterior, it's exactly what you envisioned, but what about the inside of the design? It's important to spend some time and digest the design's interior elements. Here are a few considerations to think about when evaluating if this is the right plan for you.

 

  First off, think about how you live in your home.
 • Do you or your family prefer to have one or two places to gather all together, or do you prefer to have more private places within your home.
 • Consider how you move through the home in your day to day life. Visually walk through the front door, what do you walk through or by? Do the same from your back door and garage entrances.
 • Is your family life more formal or casual and do the living spaces of the design complement your lifestyle?
 • Will your existing furniture fit within the spaces?
 • If you have a family, do you want the master suite close to the secondary bedrooms or separated?
  Do you entertain? Are there elements within the floor plan that allow for entertaining with ease?
  How do you take care of laundry? Would you prefer the laundry room to be close by the kitchen, garage, or close to the bedrooms?
  Storage space? Is there enough?
 • Consider your access to the outside? Do you want to extend your indoor living to the outside? Is there adequate porches or patios for how you want to enjoy your yard? Where will you place your grill or patio furniture?
 • The view? What are you going to see when you look out your windows? Need more privacy or need more accessibility to a view?
 • Make sure your garage will accommodate your cars, RV, or boat. Adequate storage? Do you want or need a door to the exterior beyond the opening garage doors? Utility sink? Space for an additional refrigerator or freezer?
  Consider things about your current home/residence that you don't like. By pin pointing these areas of your current home that you don't care for, you can make sure they are addressed in the next.
 

After reviewing giving it careful consideration you may find that the plan would be perfect with a few design changes. HPC can certainly help you with that with our customization services.

The Customization Process

 

So you've found that almost perfect design, and find yourself saying, "if only". Whether it's changing the size of a room, adding space or features, or moving things around, we can help you take that almost perfect design and make it perfect for you.

 

It's exciting to create a plan to fit your exact needs and wants whether it's your home, garage or even a potential investment property.

 

When you locate your plan, select the "Get Started" button located on the plan detail page. Here you will be able to share with us the changes to the interior and/or the exterior of the design. You can even upload a sketch if you have one. Complete the necessary contact information and select "Submit Request".

 

HPC will then forward your request to a designer to evaluate your changes and provide a quote within two business days. HPC is a "true quote" plan website. That means HPC will not mark-up the modification quote, we want to help keep costs down for you!

Redfern - 62868

WL Martin Home Designs

$1,025.00
(No reviews yet) Write a Review
SKU:
227 - 24386
Plan Number:
62868
Date Added:
09/24/2025
Date Modified:
09/24/2025
Designer:
houseplansguy@gmail.com
Designer Plan Title:
24386
Plan SKU:
24386
Plan Name:
Redfern
Max Price:
1320.00
Min Price:
1025.00
Pricing Set Title:
0 - 1199 sq ft
Structure Type:
Single Family
Collections:
Accessory Structures
Collections:
Tiny House Plans
Collections:
1.5 Story House Plans
Interior Features:
Casual or Open Style Living Room
Interior Features:
Great Room
Interior Features:
Storage
Square Footage: Total Living:
664
Square Footage: 1st Floor:
435
Square Footage: 2nd Floor:
229
Floors:
2
FLOORS_filter:
2
Bedrooms:
1
BEDROOMS_filter:
1
Baths Full:
1
FULL BATHROOMS_filter:
1
Baths Half:
1
HALF BATHROOMS_filter:
1
Ridge Height:
22'8"
Overall Exterior Depth:
17
Overall Exterior Width:
27
Main Floor Ceiling Height:
8'
Second Floor Ceiling Height:
8'
Available Foundations:
Concrete Slab
Default Foundation:
Concrete Slab
Available Walls:
2x4 Wood Frame
Default Wall:
2x4 Wood Frame
Ext Wall Material:
Lap Siding
Lot Type:
Narrow Lot (
Lot Slope:
Level Lot
Roof Framing:
Stick
Roof Pitch:
8/12
Primary Style:
Cottage
Secondary Styles:
Craftsman
Secondary Styles:
Traditional
Kitchen Features:
Breakfast Nook/Dining Area
Kitchen Features:
Eating Bar or Peninsula
Kitchen Features:
Kitchen Island
Kitchen Features:
Large Kitchen
Utility Room Features:
Close to Kitchen or Garage
Utility Room Features:
Main Floor Utility Room
Styles:
Cottage House Plans
Styles:
Craftsman House Plans
Styles:
Traditional House Plans
Collections:
2 Story House Plans
Collections:
Narrow Lot House Plans
Collections:
Small House Plans
Regions:
Southeast House Plans/Florida Home Plans
Product Rank:
685

The Redfern house plan exemplifies the perfect balance of cottage style charm and modern functionality, delivering an impressive 664 sq ft of thoughtfully designed living space. This delightful 1.5-story home design maximizes every square inch while maintaining the cozy, welcoming atmosphere that defines cottage style architecture.

This carefully crafted house plan features a smart open-concept layout that seamlessly connects the main living areas. The heart of the home showcases a spacious living room that flows effortlessly into the kitchen and dinette area, creating an inviting space perfect for both daily living and entertaining. The kitchen boasts a practical island that provides additional counter space and storage, while the adjacent dinette offers comfortable dining for family meals or intimate gatherings.

The main floor of this cottage style home plan includes essential convenience features that enhance daily living. A well-positioned half bath serves guests and residents alike, while thoughtful storage solutions appear throughout the design. The kitchen area incorporates modern appliances including a dishwasher, and the layout accommodates a full-size refrigerator and cooking range with ease.

One of the standout features of this tiny house design is the impressive storage capacity built into the compact footprint. Storage under stairs maximizes the vertical space, while additional outside storage provides room for outdoor equipment, seasonal items, or hobby supplies. These clever storage solutions ensure that despite the efficient 664 sq ft size, residents never feel cramped or lacking in organizational options.

The upper level of this 1.5-story floorplan houses the private bedroom retreat. The generously sized bedroom offers comfortable sleeping quarters with ample space for a full bedroom suite. The upstairs also features a complete bathroom with modern fixtures, including a full bathtub and dual sink vanity, providing spa-like comfort in this compact home design.

Natural light floods the interior through strategically placed windows, while the sliding glass door creates seamless indoor-outdoor living opportunities. This feature particularly appeals to those seeking to extend their living space onto outdoor patios or decks, making the home feel larger than its actual square footage suggests.

The Redfern home plan incorporates practical features that make it an ideal tiny house solution. The covered stoop provides welcoming curb appeal while offering protection from the elements. Inside, the washer and dryer connections ensure that all modern conveniences are available within the compact layout.

This versatile house plan works exceptionally well as an ADU (Accessory Dwelling Unit), providing homeowners with options for rental income, guest accommodations, or multi-generational living solutions. The complete kitchen, full bathroom facilities, and separate bedroom make it a fully functional independent living space that meets most municipal ADU requirements.

The 1 bedroom layout offers privacy and comfort while maintaining the social aspects of open-plan living in the main areas. This home design appeals to first-time homeowners, empty nesters, or anyone seeking to downsize without sacrificing style or functionality. The Redfern floorplan represents the growing trend toward efficient, sustainable living spaces that don't compromise on comfort or style. Whether used as a primary residence, guest house, rental property, or ADU, this home plan delivers cottage style charm in a perfectly proportioned 664 sq ft package.

1 Set Package

One printed set of construction drawings. Includes a single build license.

1 Set Study Package

A single review set of the construction drawings marked Not For Construction and do not include a license to build. Upgrade to a licensed construction package or sign on for modifications within 1 year of purchase and received a 100% upgrade credit.

3 Sets

Three printed sets of construction drawings. Includes a single build license.

3 Set Package

Three printed sets of construction drawings. Includes a single-build license.

4 Sets

Four printed sets of construction drawings. Includes a single build license.

3 Sets + PDF Print

Three printed sets of construction drawings plus a Print PDF (non-modifiable). Includes a single build license.

4 Set Package

Four printed sets of construction drawings. Includes a single build license.

5 Set + Print PDF

Five printed sets of construction drawings plus a Print PDF (non-modifiable, print only). Includes a single build license.

5 Sets + Print PDF

Five printed sets of construction drawings plus a Print PDF (non-modifiable, print only). Includes a single build license.

5 Set Package

Five printed sets of construction drawings. Includes a single build license.

5 Set with PDF

Five printed sets of construction drawings plus a PDF copy of the construction drawings.

5 Sets with PDF

Five printed sets of construction drawings plus a PDF copy of the construction drawings.

6 Set Package

Six printed sets of construction drawings. Includes a single build license.

8 Set + Print PDF

Eight printed sets of construction drawings plus a Print PDF (non-modifiable, print only). Includes a single build license.

8 Set Package

Eight printed sets of construction drawings. Includes a single build license.

8 Sets with PDF

Eight printed sets of construction drawings plus a PDF copy of the construction drawings.

CAD + PDF

A digital plan package which includes both CAD (DWG) and PDF Files. Includes a single build license which allow the plans to be modified and reproduced locally.

CAD + PDF Unlimited

A digital plan package which includes both CAD (DWG) and PDF Files and includes an unlimited build license.

CAD Masters

A digital copy of the construction drawings in a DWG file format. Includes a single build license with permissions which allow the plan to be modified and reproduced locally. CAD Masters are emailed saving shipping costs and time.

CAD Package

A digital copy of the construction drawings in a DWG file format. Includes a single build license with permissions which allow the plan to be modified and reproduced locally. CAD Packages are emailed saving shipping costs and time.

CAD w/Multi-Use License

A digital copy of the construction drawings in a DWG file format. Includes a multiple build license with permissions which allow the plan to be modified and reproduced locally. CAD Packages are emailed saving shipping costs and time.

Concept Plan Package

Includes both PDF and DWG files of the Elevations, Floor Plan(s), and Roof Outline which can be used by a local design professional to complete the construction documents to site specific requirements, conditions and building practices. Includes a non-transferable unlimited build license.

Construction Package

Five printed sets of construction drawings that include a material list and a PDF (small size).

Master Builder CAD Set

A digital plan package which includes both the PDF Master and CAD Master (DWG) and includes an unlimited build license.

PDF Bid Set

A digital review set for bidding and personal study in a PDF format. Marked Not For Construction and does not include a license to build. Upgrade to a licensed construction package or proceed with plan customization services and receive a 100% credit (valid within 1 year of purchase).

PDF File

A digital copy of the construction drawings in a PDF format. Includes a single build license with modification permissions so a local professional with compatible software can make changes to the plan. PDF Files are emailed saving shipping costs and time.

PDF Master

A digital copy of the construction drawings in a PDF format. Includes a single build license with modification permissions so a local professional with compatible software can make changes to the plan. PDF Files are emailed saving shipping costs and time.

PDF Print Package

A digital copy of the construction drawings in a PDF format (non-modifiable, print only). Includes a single build license with permissions to make copies of the plan locally as needed. The PDF Print Package is emailed saving shipping costs and time.

PDF Print Package + 1 Set

One printed set of construction drawings plus a PDF Print Package (non-modifiable, print only). Includes a single build license.

PDF Print Package + 2 Sets

Two printed sets of construction drawings plus a PDF Print Package (non-modifiable, print only). Includes a single build license.

PDF Print Package + 3 Sets

Three printed sets of construction drawings plus a PDF Print Package (non-modifiable, print only). Includes a single build license.

PDF Print Package + 4 Sets

Four printed sets of construction drawings plus a PDF Print Package (non-modifiable, print only). Includes a single build license.

PDF Print Package + 5 Sets

Five printed sets of construction drawings plus a PDF Print Package (non-modifiable, print only). Includes a single build license.

PDF Study Set

A digital review set for bidding and personal study in a PDF format. Marked Not For Construction and does not include a license to build. Upgrade to a licensed construction package or proceed with plan customization services and receive a 100% credit (valid within 1 year of purchase).

PDF Unlimited

A digital copy of the construction drawings in a PDF format that includes an unlimited build license.

PDF w/Multi-Use License

A digital copy of the construction drawings in a PDF format. Includes a multiple build license with permissions which allow the plan to be modified and reproduced locally. This package is emailed saving shipping costs and time.

Plan Package

A digital plan package which includes the PDF Master, CAD Master (DWG), and Sketchup Pro Files (.layout). This package is emailed saving shipping costs and time.

Plans Now

Don’t wait – get your plans NOW! This digital plan package is a downloadable Print PDF Package (non-modifiable, print only). Includes a single build license – signed during check out – with permissions to make copies of the plan locally as needed.

Preliminary Set

One printed set of the elevations and floor plan(s) for study and review. Marked Not For Construction and does not include a license to build. Upgrade to a licensed construction package or proceed with plan customization services and receive a 100% credit (valid within 1 year of purchase).

Pricing Package

One printed set of the elevations and floor plan(s) plus a material list.

Reproducible Vellums

One printed set of construction drawings on transparent paper. Includes a single build license with permissions to modify and reproduce the plans. Modifications to this plan package are made by hand.

Review Set

A digital study set of the elevations and floor plan(s) only. The review set is not to scale. Upgrade to a licensed construction package or proceed with plan customization services and receive a 100% credit (valid within 1 year of purchase).

Study Set via Email

A digital review set for bidding and personal study in a PDF format. Marked Not For Construction and does not include a license to build. Upgrade to a licensed construction package or proceed with plan customization services and receive a 100% credit (valid within 1 year of purchase).

Study Set via email

A digital review set for bidding and personal study in a PDF format. Marked Not For Construction and does not include a license to build. Upgrade to a licensed construction package or proceed with plan customization services and receive a 100% credit (valid within 1 year of purchase).

5 Set Package Kit

Bundled savings! Includes 5 Print Sets of construction drawings, a PDF formatted to print 11’x17”, and a material list. Please note that the PDF may not be to scale.